Chung cư Đức Giang Residence
Email : Hoanghailand.info@gmail.com
Hotline : 0979.051.746
Chi tiết dự án
Thông tin chỉ mang tính chất tham khảo, hiện tại chưa có thông tin chính thức từ CĐT
QUÝ KHÁCH CÓ NHU CẦU XIN VUI LÒNG ĐỂ LẠI THÔNG TIN

Tên dự án: Đức Giang Residence
Vị trí dự án: Số 18/44 đường Đức Giang, P. Thượng Thanh, Q. Long Biên, TP Hà Nội.
Chủ đầu tư: Công ty Cổ phần Bột giặt và hóa chất Đức Giang.
Đơn vị thiết kế: Công ty Cổ phần kiến trúc Lập Phương - CUBIC
Tổng diện tích đất: 54.312m2
Diện tích xây dựng: 19.592m2
Diện tích sàn xây dựng: 174.121m2
Diện tích công trình công cộng: 4.613m2
Diện tích Trường PTTH: 4.003m2
Diện tích đất ở N02 (53 căn liền kề): 5.700m2
Diện tích đất ở N03 (3 tòa chung cư)
- Diện tích lô đất: 17.048m2
- Diện tích xây dựng: 9.472m2
- Diện tích xây dựng khối đế: 9.472m2
- Diện tích xây dựng khối tháp: 5.088m2
- Mật độ xây dựng khối đế: 55,6%
- Mật độ xây dựng khối tháp: 29.7%
- Diện tích sàn xây dựng: 131.218m2
- Quy mô: 23 tầng nổi, 02 tầng hầm, 03 tầng đế
Diện tích đất giao thông: 10.119m2
Diện tích đất trả lại thành phố: 1.585m2
Mật độ xây dựng toàn dự án: 36.1%
Quy mô dân số: 2.263 người
Hình thức sở hữu: Sổ hồng vĩnh viễn

Khu nhà ở dịch vụ thương mại và văn phòng Đức Giang Residence nằm ngay trên đường Đức Giang, phường Đức Giang, quận Long Biên Thanh Phố Hà Nội, được đánh giá có vị trí vàng gần sông Hồng, và Trung tâm Thành Phố đảm bảo 3 tiêu chí chọn lựa nhà, “nhất cận giang, nhà cận thị, tam cận lộ”

Xung quanh là hệ thống cơ sở hạ tầng phát triển đồng bộ dẫn đến các kết nối tiện ích ngoại khu, với vị trí đó Đức Giang Residence, Long Biên gần với một số điểm như:
- Cách cầu Chương Dương 5,5 km về phía Tây để đi vào trung tâm Thành Phố kết nối.
- Cách cầu Đông Trù 1,5km để kết nối với khu vực tỉnh Bắc Ninh.
- Cách Aeon Mall Long biên 6,5km.
- Cách trung tâm quận Hoàn Kiếm 8km..

Với vị trí được quy hoạch ngay gần khu trung tâm, giao thông thuận lợi gần Sân bay Gia Lâm, Mipec Long Biên. Đễ dàng di chuyển tới sân bay Nội Bài, các tỉnh lân cận. Dự án Hóa chất Đức Giang gần bến xe Gia Lâm, Ga Long Biên, ga Hà Nội.

Dự án Đức Giang Residence là một nơi lý tưởng đáp ứng đủ nhu cầu cho tất cả mọi người. Không chỉ có bể bơi rộng lớn, từng dòng nước mát trong veo mà xung quanh còn có công viên rộng lớn được trồng nhiều cây xanh, thoáng mát, dễ chịu. Khác hoàn toàn với những con đường ồn ào tiếng còi xe, bụi mù mịt từ khí thải.

Với phương châm đem đến cho khách hàng một cuộc sống thoải mái và tiện nghi, các nhà làm Dự án Đức Giang Residence 44 Đức Giang không những chú trọng đặc biệt đến thiết kế các căn hộ cho phù hợp với phong thủy mà còn đem đến cho các khách hàng của mình một cuộc sống đầy đủ ngay chính tại nơi đây mà không phải đi bất cứ đâu như: mua sắm, giải trí, chăm sóc sức khỏe, làm đẹp, tập luyện thể thao... Các tiện ích ngay tại dự án giúp bạn tiết kiệm nhiều thời gian, công sức và tiền bạc sẽ nâng tầm cuộc sống cho bạn.

Toàn bộ căn hộ tại Chung cư Đức Giang Residence được thiết kế với thiết kế ưu việt để đáp ứng toàn bộ nhu cầu nghỉ ngơi tươi mát của khách hàng, đảm báo đưa đến 100% lượng không khí tươi váo vào trong từng căn hộ của bạn. Đặc biệt hơn nữa là cách bố trí hệ thống bế sát với lô gia để tạo ra sự thông thoáng cho bếp và căn hộ của gia chủ.

Tại Chung cư Hóa chất Đức Giang, cư dân sẽ được hưởng một cuộc sống tiện nghi và thuận tiện với hệ thống an toàn, hệ thống thang máy chở người và hàng hóa riêng biệt nhằm đảm bảo lưu lượng di chuyển của cư dân vào giờ cao điểm, hệ thống an ninh đồng bộ, camera giám sát 24/24, máy phát điện dự phòng khởi động sau 15 giây khi xảy ra sự cố, tầng hầm để xe rộng rãi đáp ứng nhu cầu đi lại của cho cư dân

Với những thiết kế hiện đại, áp dụng các tiêu chuẩn kiểu mẫu cho những căn hộ tại Chung cư Đức Giang Residence người mua nhà có thể hoàn toàn yên tâm về không gian sống, việc vận dụng các yếu tố phong thuỷ vào trong từng thiết kế với chủ đạo các căn hộ đều lấy cảm hừng “Chạm tay vào Nắng và Gió” kết hợp tinh tế với thiên nhiên, mang thiên nhiên vào từng căn hộ nhưng vẫn giữ được sự sang trọng và đẳng cấp.
Dự án Đức Giang Residence được xây dựng dựa trên ý tưởng về một tổ hợp căn hộ hiện đại mang phong cách kiến trúc xanh và thông minh, với không gian sống đầy đủ tiện ích cao cấp được quy hoạch và bố trí tuyệt đẹp. Thiết kế kiến trúc xanh, tiết kiệm năng lượng, cộng thêm vị trí đắc địa trong khu vực tạo nên sức hút của dự án Đức Giang Residence.




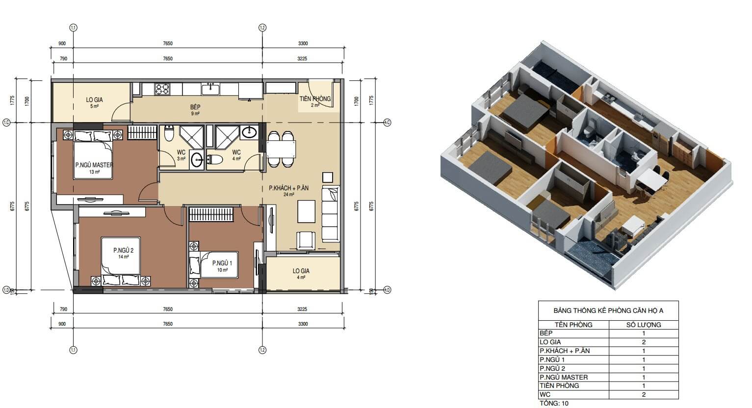
Với diện tích đa dạng cùng thiết kế 2PN, 3PN, tối đa hóa công năng sử dụng với nhiều không gian độc đáo như : vườn treo, phòng gia nhân, phòng giặt, kho… dự án mang tới nhiều sự lựa chọn, đáp ứng nhu cầu khác nhau của khách hàng. Đặc biệt, các căn hộ có sân vườn là điểm nhấn thu hút sự quan tâm của nhiều đối tượng, nhất là đối với khách hàng muốn sở hữu căn hộ cao cấp có sân vườn riêng biệt.





Tất cả đều là căn góc, sở hữu mặt bằng căn hộ vuông vắn, tối đa hóa công năng sử dụng và trên hết, 50% căn hộ có 2 đến 3 mặt thoáng với tầm view rộng mở. Hơn nữa, các căn hộ tại Chung cư Đức Giang Residence có thiết kế tối khi vừa có logia phơi đồ kín để giữ cảnh quan chung của cả tòa nhà lại vừa có ban công đáp ứng sở thích của khách hàng.
Thông tin chỉ mang tính chất tham khảo, hiện tại chưa có thông tin chính thức từ CĐT
QUÝ KHÁCH CÓ NHU CẦU XIN VUI LÒNG ĐỂ LẠI THÔNG TIN
TIN TỨC MỚI CẬP NHẬT
DỰ ÁN NỔI BẬT
Dự án cùng khu vực
Chat Zalo