Chung cư Him Lam Thượng Thanh
Email : Hoanghailand.info@gmail.com
Hotline : 0979.051.746
Chi tiết dự án
LIÊN HỆ TƯ VẤN VÀ ĐẶT LỊCH XEM DỰ ÁN
HOTLINE: 0964.63.36.26
************

Him Lam Thượng Thanh là tổ hợp căn hộ và nhà ở xã hội được đầu tư xây dựng tại phường Thượng Thanh, quận Long Biên, TP Hà Nội do Công ty Cổ phần Him Lam Thủ Đô làm chủ đầu tư. Nhà ở xã hội Him Lam Thượng Thanh được xây dựng trên diện tích 60.355m2, với mật độ xây dựng chỉ khoảng 40%, với quy mô gồm 1980 căn hộ chung cư và 44 căn liền kề, thiết kế sang trọng và hiện đại từ 2-3 phòng ngủ, đầy đủ tiện nghi và tiện ích vượt trội. Khu căn hộ đẳng cấp và sang trọng trong môi trường sống gắn liền với không gian xanh rộng lớn cùng các quần thể dịch vụ đa dạng. Các tòa nhà ở đây đều sử dụng giải pháp năng lượng thân thiện với môi trường, tiết kiệm năng lượng và giảm thiểu ô nhiễm.
Nhà ở xã hội Him Lam Thượng Thanh được xây dựng tại khu NO-7 & NO-10 phường Thượng Thanh với định hướng mang đến sự tiện ích, sang trọng và đẳng cấp cho khách hàng. Các căn hộ đảm bảo được tính thông thoáng, hiện đại nhưng vẫn tối ưu được công năng sử dụng và tất cả các căn hộ đều tràn ngập ánh sáng tự nhiên. Dự án Him Lam sẽ mang lại cho cư dân sự thoải mái sau những giờ làm việc căng thẳng, sẽ đảm bảo được “nơi chốn an cư lạc nghiệp” cho cư dân sinh sống nơi đây.

Nhà ở xã hội Him Lam thượng Thanh nằm ngay trên phường Thượng Thanh, quận Long Biên Thanh Phố Hà Nội, được đánh giá có vị trí vàng gần sông Hồng, và Trung tâm Thành Phố đảm bảo 3 tiêu chí chọn lựa nhà, “nhất cận giang, nhà cận thị, tam cận lộ”

Xung quanh là hệ thống cơ sở hạ tầng phát triển đồng bộ dẫn đến các kết nối tiện ích ngoại khu, với vị trí đó Him Lam Thượng Thanh, Long Biên gần với một số điểm như:
- Cách cầu Chương Dương 5,5 km về phía Tây để đi vào trung tâm Thành Phố kết nối.
- Cách cầu Đông Trù 1,5km để kết nối với khu vực tỉnh Bắc Ninh.
- Cách Aeon Mall Long biên 6,5km.
- Cách trung tâm quận Hoàn Kiếm 8km..

Với vị trí được quy hoạch ngay gần khu trung tâm, giao thông thuận lợi gần Sân bay Gia Lâm, Mipec Long Biên. Đễ dàng di chuyển tới sân bay Nội Bài, các tỉnh lân cận. Dự án NƠXH Him Lam Thượng Thanh gần bến xe Gia Lâm, Ga Long Biên, ga Hà Nội.

Dự án Him Lam Thượng Thanh là một nơi lý tưởng đáp ứng đủ nhu cầu cho tất cả mọi người. Không chỉ có bể bơi rộng lớn, từng dòng nước mát trong veo mà xung quanh còn có công viên rộng lớn được trồng nhiều cây xanh, thoáng mát, dễ chịu. Khác hoàn toàn với những con đường ồn ào tiếng còi xe, bụi mù mịt từ khí thải.

Với phương châm đem đến cho khách hàng một cuộc sống thoải mái và tiện nghi, các nhà làm Dự án Nhà ở xã hội Him Lam Thượng Thanh không những chú trọng đặc biệt đến thiết kế các căn hộ cho phù hợp với phong thủy mà còn đem đến cho các khách hàng của mình một cuộc sống đầy đủ ngay chính tại nơi đây mà không phải đi bất cứ đâu như: mua sắm, giải trí, chăm sóc sức khỏe, làm đẹp, tập luyện thể thao... Các tiện ích ngay tại dự án giúp bạn tiết kiệm nhiều thời gian, công sức và tiền bạc sẽ nâng tầm cuộc sống cho bạn.

Toàn bộ căn hộ tại Chung cư - NƠXH Him Lam Thượng Thanh được thiết kế với thiết kế ưu việt để đáp ứng toàn bộ nhu cầu nghỉ ngơi tươi mát của khách hàng, đảm báo đưa đến 100% lượng không khí tươi váo vào trong từng căn hộ của bạn. Đặc biệt hơn nữa là cách bố trí hệ thống bế sát với lô gia để tạo ra sự thông thoáng cho bếp và căn hộ của gia chủ.

Tại Chung cư - NƠXH Him Lam Thượng Thanh, cư dân sẽ được hưởng một cuộc sống tiện nghi và thuận tiện với hệ thống an toàn, hệ thống thang máy chở người và hàng hóa riêng biệt nhằm đảm bảo lưu lượng di chuyển của cư dân vào giờ cao điểm, hệ thống an ninh đồng bộ, camera giám sát 24/24, máy phát điện dự phòng khởi động sau 15 giây khi xảy ra sự cố, tầng hầm để xe rộng rãi đáp ứng nhu cầu đi lại của cho cư dân

Với những thiết kế hiện đại, áp dụng các tiêu chuẩn kiểu mẫu cho những căn hộ tại Chung cư - NƠXH Him Lam Thượng Thanh người mua nhà có thể hoàn toàn yên tâm về không gian sống, việc vận dụng các yếu tố phong thuỷ vào trong từng thiết kế với chủ đạo các căn hộ đều lấy cảm hừng “Chạm tay vào Nắng và Gió” kết hợp tinh tế với thiên nhiên, mang thiên nhiên vào từng căn hộ nhưng vẫn giữ được sự sang trọng và đẳng cấp.
Dự án NƠXH Him Lam Thượng Thanh được xây dựng dựa trên ý tưởng về một tổ hợp căn hộ hiện đại mang phong cách kiến trúc xanh và thông minh, với không gian sống đầy đủ tiện ích cao cấp được quy hoạch và bố trí tuyệt đẹp. Thiết kế kiến trúc xanh, tiết kiệm năng lượng, cộng thêm vị trí đắc địa trong khu vực tạo nên sức hút của dự án Him Lam Thượng Thanh.





















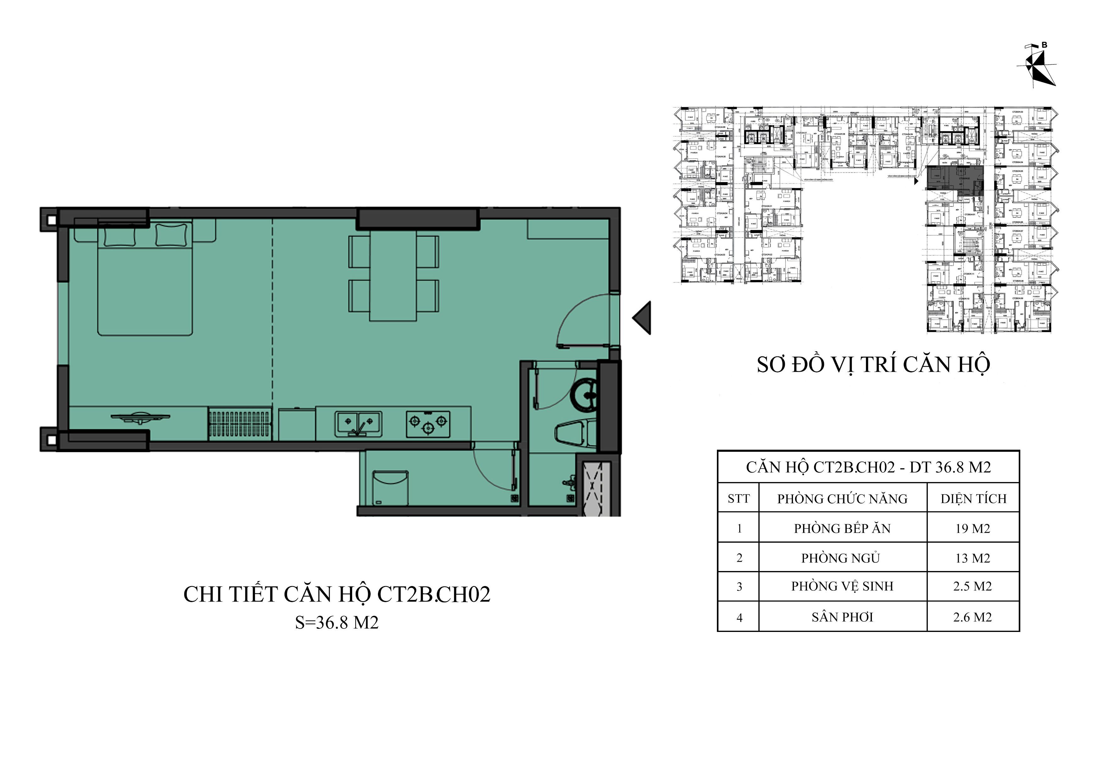
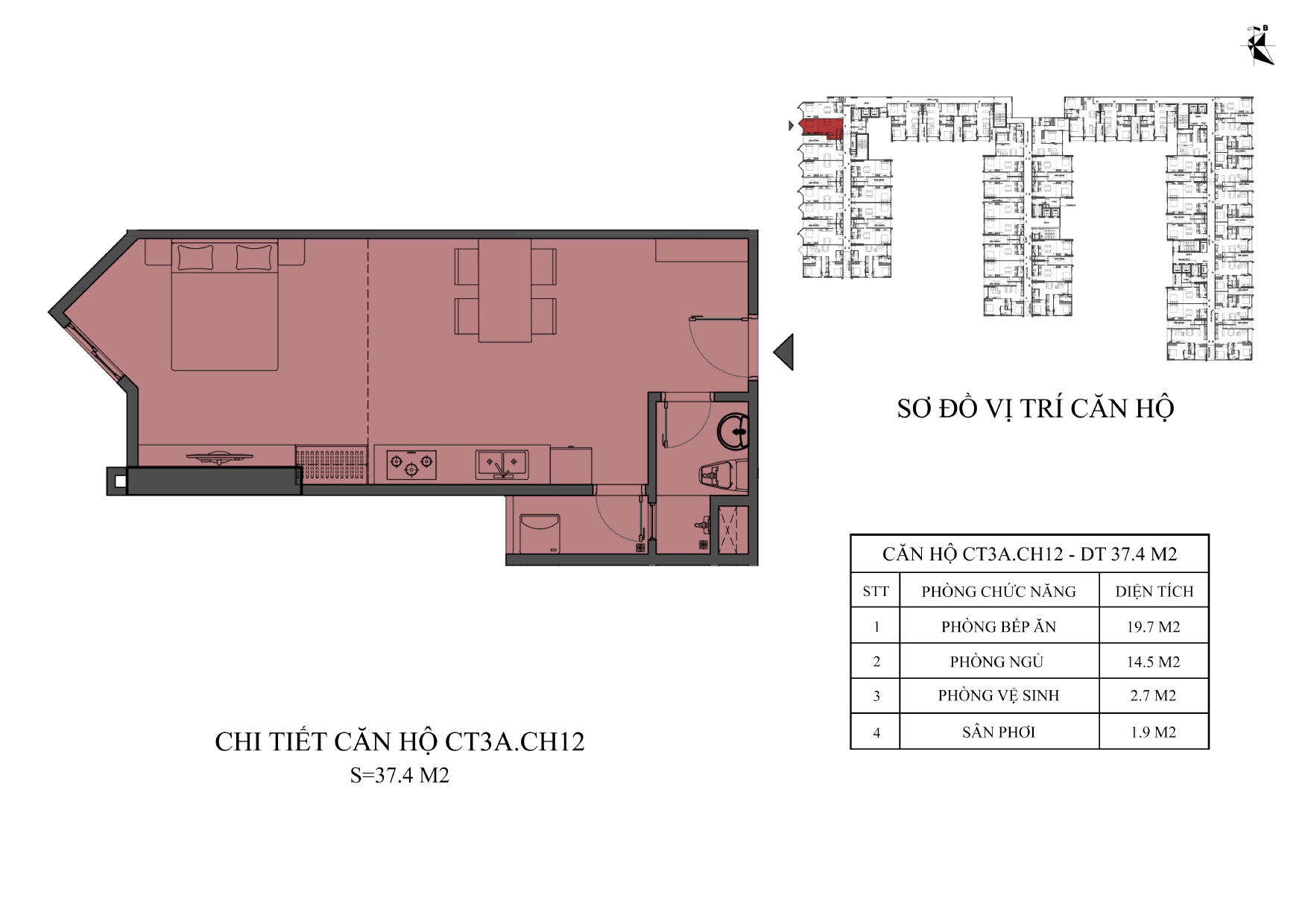
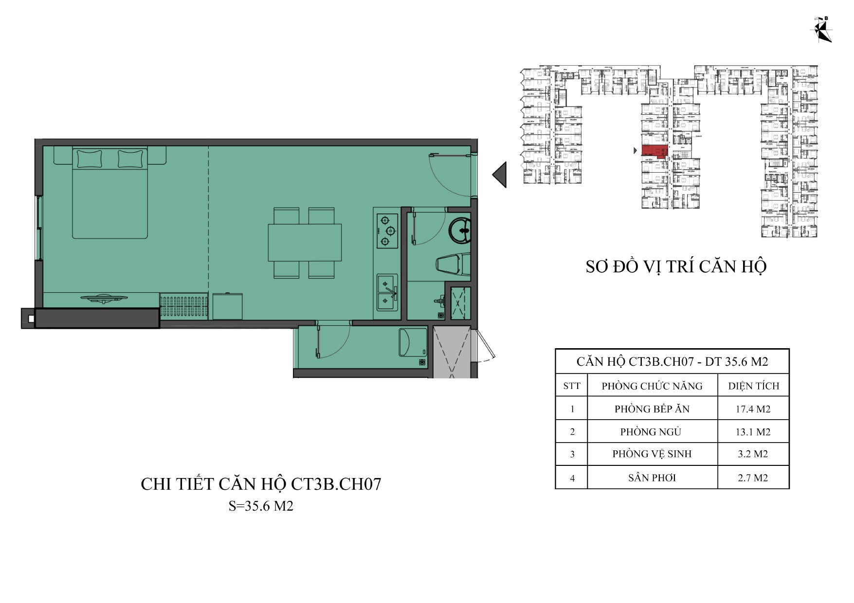
Tất cả đều là căn góc, sở hữu mặt bằng căn hộ vuông vắn, tối đa hóa công năng sử dụng và trên hết, 50% căn hộ có 2 đến 3 mặt thoáng với tầm view rộng mở. Hơn nữa, các căn hộ tại Chung cư NƠXH Him Lam Thượng Thanh có thiết kế tối khi vừa có logia phơi đồ kín để giữ cảnh quan chung của cả tòa nhà lại vừa có ban công đáp ứng sở thích của khách hàng.


















































Nhà ở xã hội Thượng Thanh của chủ đầu tư Him Lam đã và đang nhận được rất nhiều sự quan tâm từ phía khách hàng không chỉ bởi thiết kế căn hộ hiện đại và các tiện ích cao cấp được thừa hưởng từ các khu đô thị xung quanh, mà còn ở vị trí trung tâm, tiệm cận các con đường huyết mạch giúp việc di chuyển trở nên thuận tiện hơn bao giờ hết.
LIÊN HỆ TƯ VẤN VÀ ĐẶT LỊCH XEM DỰ ÁN
HOTLINE: 0964.63.36.26
************
TIN TỨC MỚI CẬP NHẬT
DỰ ÁN NỔI BẬT
Dự án cùng khu vực
Chat Zalo